Sliding Doors & Windows

Our range of Sliding Systems offers an excellent solution for maximizing space and seamlessly connecting indoor and outdoor areas. By incorporating our aluminum sliding doors and sliding folding doors, you can create expansive glazed areas that invite ample natural light into any room. These innovative systems effectively minimize barriers, allowing for a smooth transition between the interior and exterior spaces.

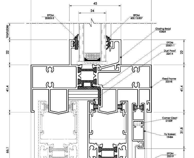
GULFEX MONTANA 105-120

Description

The New Montana Thermal Break 105-120mm Sliding System is designed for heavy-duty use (H-HC40) according to the American National Standard. The Montana thermal break with 16mm fiberglass reinforced polyamide insulation has the sought-after properties of high thermal resistance, rigidity, hardness, and strength.
The system consists of a single frame and sash profile that will be used on all four sides, with snap-on track clips.
The system covers two, three, and four sashes including profiles for top and bottom fixed lights. This system has the special advantage of permitting subsequent application of all presently known surfaces suitable for use with aluminum either after or before the thermal break strips have been assembled along with the bi-coloration option.

Advantages

  • Frame: 105mm / 120mm
  • Sash: 37.4mm
  • Flyscreen can be used from inside & outside
  • The system covers Arch shape
  • Different Typologies Two, three or four sashes
  • Assembly of the Frame & Sash cut 450

Characteristics

FRAME DEPTH 105/120mm
SASH WIDTH 37.4mm
GLAZING TYPE Single/Double
TYPE OF THERMAL INSULATION Thermal Strip 16mm
SEALING METHOD EPDM Gaskets
Uw 3.3 W/m2K
TYPES OF TYPOLOGY 2, 3 or 4 sashes
MAXIMUM GLAZING THICKNESS 24mm

Performance

WIND LOAD RESISTANCE ASTM E330-02 (serviceability)
AIR PERMEABILITY ASTM E283-04
WATER TIGHTNESS ASTM E331-00 (static)
WIND LOAD RESISTANCE ASTM E330-02 (safety)



Related Files